Starry Skies - West Shore Cabin. Walk to Private Beach. DOG OK | House in Tahoe City

5 Bedroom House in Tahoe Sierra Estates, Tahoe City
While conveniently located near all the action, you wouldn't know it by the amount of quiet and privacy enjoyed here. Leave the car and walk to Tahoe House for a cup of the best coffee in town, or take a stroll into Tahoe City to check out concerts in the park or the many dining options. Regardless of the season, the location is perfect for active families, romantic getaways, or a retreat to rest and recharge. If that wasn't enough, this quintessential Tahoe cabin, offers HIGHLY sought after private beach access only utilized by a small number of residents at the Tahoe Sierra Estates beach. Walk right out the back yard, and the beach entrance is just a short walk away.
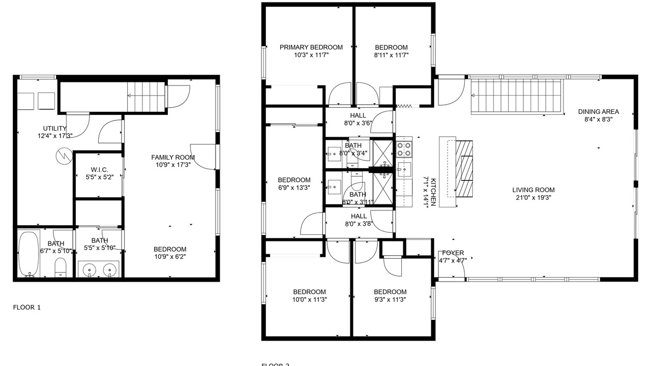
A functional and efficient floor plan, you enter the house directly into the kitchen. Though basic, it provides the necessary space and tools to feed your clan. Around the corner an updated living area centers around a cozy wood fireplace and multiple dining tables ensure everyone as a comfortable place to eat. In the warmer months, most will be drawn to the back deck area where filtered lake views and towering pines create the ideal setting for evening BBQs.
This Tahoe City cabin is set up to accommodate family gatherings and with seven sleeping areas, it does just that. Upon entering the west end of the home houses three simple guest rooms that share a full bath. With a king, double, and bunk bed there are options for every scenario. On the east end, a similar hall offers three additional rooms with a king, double, and twin singles divided among the rooms. These rooms also share a full bathroom. Have teens or young adults that could use a little more space? No problem. Send the downstairs where a TV sitting area, full bath, and bunk beds provide the perfect teen hang out.
Visitors with mobility concerns will appreciate that the majority of this vacation home (aside form the aforementioned downstairs family room) sits at one level, without stairs to navigate.
BRONZE LEVEL PROPERTY
• Gas Fireplace in Main Living Room
• Easy walk to Private Beach (Not pet friendly)
• Shared Pier Access at Private Beach
• Very Quiet Setting, Located at end of cul du sac
• Easy Access to Tahoe City Bike Path
• BBQ Grill (seasonal)
• Well traveled dogs (2 maximum) welcome (fee applies) - Not allowed on private beach.
Tahoe Sierra Estates HOA includes :
• Private Gated Sandy Beach (Pet's not allowed)
• Private Shared Pier
ABOUT THE AREA
Conveniently located about a mile south of Tahoe City, the Tahoe Sierra Estates neighborhood provides easy access to town and the area resorts. Still considered the West Shore, this location can't be beat. Lake Tahoe's west shore features Old Tahoe style homes and classic cabins. Just down the road you'll find Sunnyside Resort and Marina and William Kent Shoreline. William Kent beach is situated in a wooded setting and offers picnic tables and grills with views across Lake Tahoe of the eastern shoreline. Next door, Sunnyside Resort is a favorite year round lakeside dining option.
During the ski season, you are less than fifteen minutes from Homewood Mountain Resort. Or travel just fifteen minutes to Palisades Ski Resort, two of the premier Tahoe ski areas.
POLICIES & DISCLOSURES:
1. Maximum Day Time & Night Time Occupancy is 12, excluding children under twelve (12) years of age. Sleeping arrangements for 10 guests.
2. Parking for 3 vehicles. Street Parking is prohibited.
3. The use of ANY outdoor firepit or outdoor fireplaces is strictly prohibited at all our rental properties. We appreciate your understanding and cooperation in helping to keep our community safe from wildfires.
Placer County STR Permit Number STR23-7710
Starry Skies - West Shore Cabin Walk to Private Beach DOG OK is located in Tahoe Sierra Estates. Starry Skies - West Shore Cabin Walk to Private Beach DOG OK provides accommodation, featuring TV, Security/Safety, Internet, among other amenities. This House features TV, Security/Safety, Internet, to make your stay a comfortable one.
Starry Skies - West Shore Cabin Walk to Private Beach DOG OK has 5 Bedrooms , 2 Bathrooms, and max occupancy of 10 people. The minimum rental for this property is 1 nights, but this can change depending on the season you plan on staying. Previous guests have given good rated it, and VRBO labeled it a top-rated House because of the excellent services rendered by the owner or manager of this House, and has consistently provided great experiences for their guests. Most families or guests that use it recommend it to their friends and some of them are repeat guests. House has a friendly neighborhood, and the Tahoe Sierra Estates has interesting places to visit. If you want to learn more about the House in Tahoe Sierra Estates, such as places to visit and things to do nearby, you can check below to learn more.
Amenities
Facility Overview
-
Heating
-
2+ bathrooms
-
Bathtub or shower
-
Hair dryer
-
Towels provided
-
5 bedrooms
-
Bed sheets provided
-
Dining table
-
Dining room
-
Living room
-
Fireplace
-
Dishwasher
-
Cookware/dishes/utensils
-
Spices
-
Microwave
-
Toaster
-
Refrigerator
-
Stovetop
-
Oven
-
Coffee/tea maker
-
Laundry facilities
-
Washing machine and dryer
-
Near laundromat
-
Onsite parking
-
Limited onsite parking (max 3 spaces)
-
Street parking available
-
Pet friendly
-
Smoke-free property
-
Golf privileges
-
Hiking nearby
-
Fishing nearby
-
Cycling nearby
-
Sailing nearby
-
Ice skating nearby
-
Fitness facilities nearby
-
Hunting nearby
-
Parasailing nearby
-
Hiking/biking trails nearby
-
Water tubing nearby
-
TV
-
Unit size: 1376 sq ft (128 sq m)
-
English
-
Near outlet shopping
-
In the mountains
-
Near the bay
-
Near a hospital
-
Iron/ironing board
-
Housekeeping (on request)
-
WiFi available
-
Barbecue grill
-
Firepit
-
Yard
-
Balcony
-
First aid kit
-
Smoke detector installed (host has indicated there is a smoke detector on the property)
-
Fire extinguisher
-
Deadbolt lock
-
Carbon monoxide detector installed (host has indicated there is a carbon monoxide detector on the property)
-
Cross-country skiing and snowboarding nearby
Policies
Extra-person charges may apply and vary depending on property policy government-issued photo identification and a credit card, debit card, or cash deposit may be required at check-in for incidental charges host has indicated there is a carbon monoxide detector on the property host has indicated there is a smoke detector on the property onsite parties or group events are strictly prohibited safety features at this property include a fire extinguisher, a first aid kit, and a deadbolt lock special requests are subject to availability upon check-in and may incur additional charges; special requests cannot be guaranteed this property is managed through our partner, vrbo. you will receive an email from vrbo with a link to a vrbo account, where you can change or cancel your reservation