The Kern River House: River's Edge Cottage Private Waterfront Fireplace Dog OK | House in Kernville

1 Bedroom House in Kernville
Welcome to the River's Edge Cottage - Your Private Waterfront Retreat
In a beautiful riverfront setting, your 3-person Suite has a gated driveway, private entrance, kitchenette/dining area, and fireplace. Meet the river as soon as you arrive! It's the entire riverside floor of a large 2-story house. The upper portion of the house is not rented and will be unoccupied during your stay. The house, ample property grounds and riverfront are yours alone to enjoy. Relax with the Kern River in your backyard.
HOME LAYOUT:
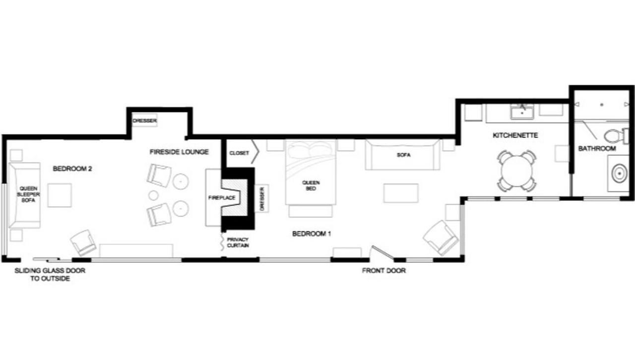
The Main Room has a Queen bed and an attached Living Room with a deep sofa that's size of twin bed. Off the Main Room is a Kitchenette with Fridge/Freezer, Countertop Oven and Electric Cooktop, and Microwave. Inside Dining Area for 4. Outside has a large dining table for 6 with a Weber propane BBQ (propane is provided).
PLEASE NOTE: there’s no full-size oven nor traditional stovetop, no dishwasher. The Kitchen is all set up for casual meal preparation.
Off the Kitchenette is a Full Bathroom with a large walk-in Shower.
The Fireplace Lounge is separated by short hallway from Main Room. The Lounge a rugged stone wood-burning fireplace. We provide firewood bundles for sale.
The Fireplace Lounge has classic entertainment such as a record player, board games and puzzles. Also includes a cozy Queen sofa bed and its own outdoor access through a sliding glass door.
PLEASE NOTE: To walk from the Fireplace Lounge to the Kitchenette and Bathroom, you'd have to enter the Main Room. This bedroom layout is best for small families or couples.
HOME FEATURES:
Unobstructed and commanding views of the riverscape and rugged mountains beyond from every room. We use local wood on the walls and local river stone on the fireplace. Our home was designed to bring elements of the landscape into the space for a peaceful, natural experience. Your private escape provides comfortable, thoughtfully designed spaces and modern conveniences - curated in a rustic modern style with vintage artwork, favorite books/games, record player and cozy furniture with plenty of room for family and friends.
PROPERTY and RIVER ACCESS:
Gated driveway with room for 2 cars and ample street parking. Electric Vehicle Charging Level 2 from driveway always available.
The entire property is fenced from front to backyard with lockable gates. Past the backyard fence is a quaint, historical river water canal that is crossed by a short footbridge with security handrails. After the bridge crossing is the river's edge concrete patio with lounge chairs & a picnic table.
This patio area has a metal handrail only, no fence. There's a natural boulder path with a handrail down to the river water. You must be sure-footed to access the water.
There’s a very nice swimming area at the house depending on the season & weather - please ask us about what to expect during your stay :)
Outside you'll find native plant-filled terraces, sitting areas, hammock and mature shade trees. Large patio and riverfront setting invites you to enjoy a BBQ or picnic lunch, or simply lounge on the deck. Enjoy the river going by.
WHAT WE PROVIDE:
Inside Amenities
Bedding (linens, blankets, pillows), Bath Towels, Hand Soap/Shower Gel/Shampoo/Conditioner, Hairdryer, Iron/Board, Pack 'n Play with Sheet, Folding Highchair, Crib with Mattress & Sheet (only with prior request), Robes, Travel Blackout Curtains, Portable Speaker, Board Games/Puzzles, Curated Reading Library, Record Player with record selection, Firewood for sale (seasonal)
Kitchen Amenities
Local Roasted Ground Coffee and Coffee Pods, Drip Coffee Machine with filter, Keurig Machine and French Press, Bagged Teas/Creamer Pods/Sweeteners, Paper Towels/Napkins, Cleaning Supplies, Dishes/Silverware/Drinkware/Kitchen Knives, Kids' Dinnerware/Silverware/Drinkware, Pots/Pans/Kitchen Accessories, Glassware, Toaster Oven/Blender/Coffee Grinder/Kettle, Olive Oil/Salt and Pepper/Basic Spices, Foil/Wraps Filtered Water
Outside Amenities
Electric Vehicle Charger Level 2 in Driveway (for fee), Propane Weber BBQ Grill and Tools (propane provided), Beach: Towels, 2 Chairs, Umbrella, Sand Toys, 2 Float Tubes, 1 Stand Up Paddleboard (seasonal), Small Selection of Life Jackets, Binoculars, Backpack, Maps, 2 Snow Sleds (seasonal)
THINGS TO DO:
1 mile to Downtown Kernville, walk there in 15 minutes. You can get your morning coffee and have a look around.
Go for a run or nature walk to Bull Run Creek at nearby Whiskey Flat Trail 1 mile from house. Visit the Giant Redwoods at Trail of 100 Giants (closed in winter). A 45 minute picturesque drive upriver.
Stroll in the Kern Audubon Preserve.
Mountain bike Cannell Trail or Whiskey Flat Trail. Fly fish the North Fork of the Kern for famous wild trout. Or trout fish right in your backyard!
Try a kayak lesson, a white water rafting trip, take an intro climbing lesson.
Kids can have some fun at Riverside Park in downtown Kernville where there's a nice playground & children's river beach.
Visit the free Kern Valley Museum or the Nuui Cunni Native American Cultural Center.
The beautiful view from Johnsondale Bridge is a short drive upriver.
Go out to the award-winning Kern River Brewery for a special brew.
Catch the stunning view & good meals at Ewing's Restaurant.
Pop into the Saloon or Sportsman's Bar for a nightcap & a chat with the locals.
When you're ready for bed, you'll fall asleep to the soothing sounds of the rushing river!
IF YOU’D LIKE MORE SPACE:
We also rent this entire house which includes the upstairs floor as the listing: The Big View House. Whichever way rent this house, you'll be the only guests in the house & on the property. Please contact us for this upgrade :)
POLICIES:
1. Guest max for nightly rate is 3. Extra guest is $50 per night per guest up to 1 extra guest max.
2. Guest MUST review and accept the Rental Agreement and Contact Form that'll be emailed after booking.
3. No fireworks/outdoor fires are allowed (propane BBQ and indoor fireplace are OK)
4. No events, parties, photoshoots without prior Owner approval. We have a Nest camera pointed at the street entry to ensure only registered Guests are on the property.
5. Two well-behaved and house trained dogs will be considered for pre-approval. Please tell us about your pet. $60 pet fee per stay will apply.
*PLEASE ANSWER ALL QUESTIONS when booking:
1. What brings you to the area?
2. What is the # of adults and # of children of any age in your group?
3. Are you bringing a pet (Yes or No)? If yes - please let us know breed, age, weight for pre-approval.
:) Thanks!
The Kern River House: River's Edge Cottage Private Waterfront Fireplace Dog OK is located in Kernville. The Kern River House: River's Edge Cottage Private Waterfront Fireplace Dog OK provides accommodation, featuring TV, Security/Safety, Fireplace/Heating, among other amenities. This House features TV, Security/Safety, Fireplace/Heating, to make your stay a comfortable one.
The Kern River House: River's Edge Cottage Private Waterfront Fireplace Dog OK has 1 Bedroom , 1 Bathroom, and max occupancy of 3 people. The minimum rental for this property is 1 nights, but this can change depending on the season you plan on staying. Previous guests have given good rated it, and VRBO labeled it a top-rated House because of the excellent services rendered by the owner or manager of this House, and has consistently provided great experiences for their guests. Most families or guests that use it recommend it to their friends and some of them are repeat guests. House has a friendly neighborhood, and the Kernville has interesting places to visit. If you want to learn more about the House in Kernville, such as places to visit and things to do nearby, you can check below to learn more.
Amenities
Facility Overview
-
Air conditioning
-
Heating
-
Eco-friendly toiletries
-
1 bathroom
-
Towels provided
-
Hair dryer
-
Shower
-
Sofa bed
-
Bed sheets provided
-
1 bedroom
-
Dining table
-
Fireplace
-
Toaster
-
Cookware/dishes/utensils
-
Coffee/tea maker
-
Oven
-
Refrigerator
-
Spices
-
Microwave
-
Stovetop
-
Laundry facilities
-
Near laundromat
-
Onsite parking
-
Electric car charging station on site
-
Car recommended
-
Pet friendly
-
Welcoming dogs only
-
2 total pets
-
If you have requests for specific accessibility needs, please contact the property using the information on the reservation confirmation received after booking.
-
Hardwood flooring in public areas
-
Area rugs in public areas
-
Tile flooring in public areas
-
Note from host: No smoking or vaping in or near the house.
-
Upper floors accessible by stairs only
-
Well-lit path to entrance
-
Smoke-free property
-
Handrails in stairways
-
Hiking/biking trails nearby
-
Fitness center
-
Marina nearby
-
Water sports equipment
-
Mountain biking nearby
-
Fitness facilities nearby
-
Snow sports gear
-
Sledding nearby
-
Water tubing nearby
-
Swimming nearby
-
Birdwatching nearby
-
Hunting nearby
-
Rafting nearby
-
Stereo
-
Games
-
Music library
-
Books
-
Smart TV
-
Unit size: 1125 sq ft (105 sq m)
-
At least 80% lighting from LEDs
-
Humane treatment of captive wild animals
-
Bulk dispenser for toiletries
-
Reusable coffee/tea filters
-
Double-glazed windows
-
English
-
French
-
Spanish
-
In a rural location
-
On the river
-
On the waterfront
-
Near a hospital
-
In the mountains
-
In a village
-
Children's books
-
Children's toys
-
Children's dinnerware
-
Highchair
-
Travel crib
-
Iron/ironing board
-
Free WiFi, with speed of 250+ Mbps (good for 3–5 people or up to 10 devices)
-
Garden
-
Barbecue grill
-
Fenced yard
-
Balcony
-
Firepit
-
Smoke detector installed (host has indicated there is a smoke detector on the property)
-
Carbon monoxide detector installed (host has indicated there is a carbon monoxide detector on the property)
-
First aid kit
-
Deadbolt lock
-
Fire extinguisher
-
Close to skiing
-
Massages
Policies
Extra-person charges may apply and vary depending on property policy government-issued photo identification and a credit card, debit card, or cash deposit may be required at check-in for incidental charges host has indicated there is a carbon monoxide detector on the property host has indicated there is a smoke detector on the property onsite parties or group events are strictly prohibited safety features at this property include a fire extinguisher, a first aid kit, and a deadbolt lock special requests are subject to availability upon check-in and may incur additional charges; special requests cannot be guaranteed this property is managed through our partner, vrbo. you will receive an email from vrbo with a link to a vrbo account, where you can change or cancel your reservation